Общественные здания – это те, которые обслуживают не одно физическое или юридическое лицо, а много людей и организаций. В них расположены предприятия, организации, оказывающие услуги. К ним относятся обучение и воспитание, лечение и развлечение, бытовое обслуживание и торговля.
В зависимости от назначения проводится проектирование общественных зданий и сооружений. Какие при этом ставятся задачи, и как это происходит?

Содержание материала
Классификация общественных зданий по назначению
Назначение зданий — основной критерий, влияющий на проектирование. Их разделили на несколько категорий:
| Категории зданий | Что к ним относится |
| Административные |
|
| Лечебно-оздоровительные |
|
| Культурно-просветительские |
|
| Спортивные |
|
| Торговые |
|
| Коммунальные |
|
| Транспорт и связь |
|
Минимальная высота помещений по минимуму соответствует трём метрам.
Вернуться к оглавлениюТиповое и индивидуальное проектирование
Все эти здания могут строиться как по типовым проектам (при массовой застройке), так и по отдельным проектам (когда здание имеет общегородское или районное значение и обслуживает единовременно много людей). Типовые здания строят вместе с жилыми домами внутри микрорайонов, обычно это сады и школы, магазины и дома быта.
Примеры школ, детсадов, магазинов:
Черта всех общественных зданий — массовое скопление в них людей, что обязывает проектировщиков предусматривать способность помещений принять и быстро выпустить большой поток людей. К таким помещениям относятся фойе и вестибюли, демонстрационные залы.

Скопившиеся в них люди должны суметь кратчайшим путём попадать в необходимую точку здания и быстро покинуть его. Кроме лестниц, лифтов и эскалаторов в таких зданиях проектируют проходные коридоры и боковые помещения (кулуары).
Типы помещений
Общественные здания содержат много однотипных элементов планировки, как то:
- входные группы с вестибюлем и гардеробом;
- эвакуационные коридоры и лестницы;
- залы с примыкающими к ним рабочими или подсобными помещениями.
Примеры интерьеров:
Те помещения, которые выполняют ключевые функции здания, называются основными. Например, это аудитории или классы, кабинеты или палаты в лечебно-оздоровительных учреждениях, или зрительные залы в развлекательных центрах.

Остальные помещения бывают:
- вспомогательными – это коридоры, фойе, подсобки;
- обслуживающими — буфеты, уборные, душевые, курительные;
- техническими – помещения, где установлены бойлеры, насосное оборудование, трансформаторные подстанции, машинные отделения, камеры воздушного кондиционирования.

Рабочая площадь таких зданий составляет общность основных, обслуживающих и вспомогательных помещений. Тамбуры, лестничные клетки и переходы с коридорами туда не относятся, но в сумме с рабочей площадью составляют общую (полезную) площадь.
Требования к ним
К общественным зданиям предъявляется ряд требований для безопасного и уютного пребывания людей. Основное из них – быстрая эвакуация, для чего проектируются пожарные лестницы. Ко многим типам зданий предъявляются ещё и отдельные требования: по видимости, слышимости, шумоизоляции и т. д.
Читайте также:


В зависимости от этажности и назначения здания, в нём могут находиться лифты и эскалаторы, холодильные камеры и мусоропроводы.

Объемная планировка
Традиционные решения по планировке для крупных общественных зданий определяют способы расположения функциональных частей здания: коридоров, лестничных маршей, санузлов относительно входной группы.

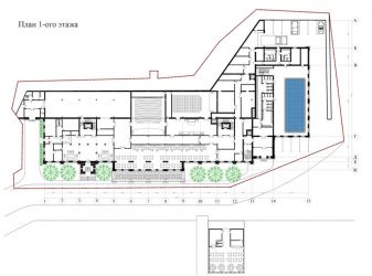
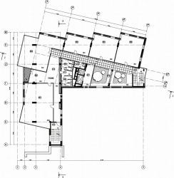
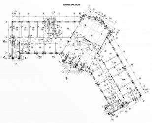
Примеры планировки зданий:
Виды композиций
Композиционно-планировочная структура бывает:
- ячеистой или коридорной (административные и учебные учреждения);
- зальной – это могут быть пространства без опор (театры или спорткомплексы) и с опорами (столовые);
- анфиладной;
- атриумной;
- павильонной (централизованной)
- комбинированной.

Вестибюльная группа
Входной узел в общественном здании состоит из нескольких элементов планировки, которые могут включать тамбур, вестибюль, несколько вспомогательных помещений типа комнаты администратора ил справочного бюро, гардеробную. Вестибюльная группа должна располагаться на равном удалении от групп основных помещений.
Тамбур играет роль теплового шлюза, призванного преградить путь потоку холодного воздуха от входного проёма внутрь здания. Глубина этого помещения обычно равна ширине одного полотна входной двери, плюс запас на открывание 20 см (но не меньше 120 см). Ширина тамбура соответствует ширине дверного проёма, плюс 15 см с каждой стороны. Двери — двупольные, и если они имеют распашную конструкцию, то должны открываться наружу.

Отметка пола тамбура на входе должна быть выше отметки поверхности тротуара минимум на 15 см.
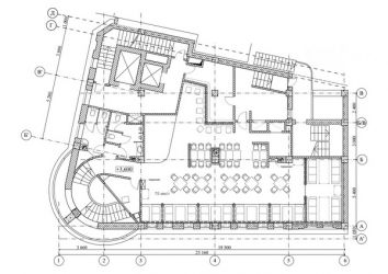
Примеры вестибюлей зданий:
Лестницы
Лестницы имеют разные функции, а потому бывают главными и служебными. Главные могут быть любой формы, но они должны быть открытыми и без ограждающих стен.
А вот служебные лестницы имеют постоянную ширину марша и располагаются в закрытых лестничных клетках, выступающие части которых могут обыгрываться в композиционной архитектуре здания.

Если здание многоэтажное, в нём должно быть предусмотрено минимум две эвакуационных лестницы, расположенных в разных местах. Каждая из них должна выводить поток людей наружу либо прямо из лестничной клетки, либо через вестибюль. В последнем случае перекрытие над вестибюлем должно быть несгораемое.
Все лестницы являются путями эвакуации, поэтому должны соответствовать требованиям по пожарной безопасности.

Количество и местоположение лестниц зависит не только от этажности и планировки здания, но и от интенсивности потока людей. Минимальная ширина марша принимается 90 см.
Если лестница ведёт на этаж, на котором одновременно может находиться больше 200 человек, а так же в зданиях больниц и кинотеатров вне зависимости от их вместимости, ширина лестницы не может быть меньше 135 см. Максимально допустимое количество ступеней в марше – 16, уклон – 1:2.

Подборка фото лестниц в общественных зданиях
Санитарные комнаты
В любых общественных зданиях проектируются туалетные комнаты с умывальниками, а в некоторых – и душевые. Для снижения протяжённости внутренних трубопроводов, на этажах их располагают друг над другом и обязательно предусматривают в них естественное освещение.
От мест массового пребывания людей санузлы должны находиться не далее, чем в 75 метрах. От других помещений их изолируют шлюзами.

Состав санитарно-бытового оборудования зависит от конкретного назначения здания.
Фото примеры общественных туалетов
Коридоры
Важной частью любой композиции являются горизонтальные и связывающие коммуникационные помещения. К горизонтальным коммуникациям относятся переходы, галереи и коридоры, к связывающим – пандусы и лестницы, эскалаторы, лифты.

В точках пересечения эти помещения образуют узловые помещения, коими являются кулуары, холлы и вестибюли.

Коридор может быть тупиковым или сквозным, быть как отнесённым вглубь здания, так и располагаться вдоль фасада. При его длине до 24 м, помещение может освещаться только с одного конца. При условии освещения с двух торцов, протяжённость коридора может составлять до 48 м.

Ширина коридоров рассчитывается в зависимости от интенсивности потока людей: минимально это 120 см для второстепенного потока, и 150 см для основного. В учебных и лечебно-оздоровительных учреждениях эти значения составляют 180 и 220 см соответственно.
Примерные варианты коридоров:
Вернуться к оглавлениюПособия для проектирования
Общим документом, на который ориентируются проектировщики, является СП (свод правил) 118.13330.2012*. Это актуализированная редакция СНиП 31-06-2009, который с июля 2015 года имеет статус недействующего.
- В новом документе, который вы можете скачать или читать онлайн на нашем сайте, определены нормы проектирования общественных зданий и сооружений – и не только новых, но и капитально ремонтируемых, подлежащих реконструкции или изменению функционального назначения. Здания могут быть не только наземными, но и иметь подземные этажи до — 15 м относительно уровня земли.
- Прописанные в документе нормы распространяются на отдельные здания и на встраиваемые помещения, назначение которых соответствует категории общественных. Точный список зданий приведён в справочном приложении В*, по подземным этажам – в рекомендуемом приложении Д*.

- Свод правил содержит общие требования к этажности, планировке и оборудованию зданий, в нём приводится перечень безопасных параметров помещений. В документе перечисляются меры по обеспечению безопасности самого здания, его коммуникаций, защите (и посетителей) от криминальных действий и их последствий.

Отдельные главы посвящены санитарным требованиям и естественному освещению, инженерному оборудованию и ремонтопригодности конструкций. В качестве рекомендуемых приложений приводятся требования к зрительным залам – предлагаются и короткие маршруты эвакуации из них людей.
ТЗ
Архитектурное проектирование общественных зданий и сооружений не делается без ТЗ – технического задания. Если сказать коротко, то это исходный документ, содержащий комплекс требований заказчика к объекту, на основании которого и формируют проект (на производство строительных работ он никак не влияет).

Подготовка заданий на проектирование выполняется по пособию ОАО «Центринвестпроект» от 2013 года. В ТЗ должны содержаться такие пункты:
- Вид строительства, название объекта.
- Его технико-экономические характеристики и максимально допустимая цена.
- Подготовки проектной документации с разбивкой по этапам.
- Этапы строительства и его сроки.
- Технические условия для подключения к инженерным сетям, требования к их обслуживанию и эксплуатации.
- Полный список конструкций, из которых формируют здание, применяемые материалы.
- Номенклатурная экспликация технологического оборудования, которым комплектуется объект, с указанием типов и марок, изготовителей и других данных.
- Список защитных сооружений и требований к ним.
Этапы проектирования
Проект – главный документ, от корректности исполнения которого зависит строительство объекта. Его исполнение начинается с архитектурной части, где можно визуализировать будущее здание и рассчитать необходимые траты.

Проектирование может идти по разным технологиям, но его последовательность не меняется. Вот какие стадии оно включает:
- Сбор разрешительной документации и исходных данных.
- Инженерные изыскания на участке застройки.
- Составление проекта для получения заключений экспертов и согласований.
- Экспертиза документации.
- Компоновка пакета рабочих чертежей и смет.
Если рабочий проект посвящается структуре здания, расчётам несущей способности и параметров основания и других конструкций, то в архитектурном разделе можно рассчитать планировку каждого этажа, выполнить детальную прорисовку каждого помещения и деталей фасада.
Вернуться к оглавлению



















































































































