Компактность, функциональность, экономичность – основные причины, по которым польские проекты домов востребованы себя на родине и в других странах. Отличительные детали особняков в этом стиле – натуральные материалы, светлые тона, отделка деревом и камнем. Кровля имеет сложную конструкцию, покрывается черепицей. Обязательно наличие колонн.

Содержание материала
Чем польские проекты домов и коттеджей отличаются от обычных
Разработкой занимается международное архитектурное бюро Z500. В России есть его официальное представительство. Большой коллектив архитекторов работает над адаптацией проектов к требованиям российских застройщиков.

Коттеджи и дома, построенные по таким разработкам, отличаются от привычных всем загородных строений компактностью:
- на относительно небольшой площади (120-150 м²) размещены все необходимые помещения;
- имеют один или два этажа;
- большую часть первого этажа занимает просторный холл и большая кухня;
- во многих проектах площадь первого этажа без перегородок;
- солнечный свет проникает внутрь через большие окна;
- большие веранды или террасы;
- крыши, двускатные или шатровые, покрыты черепицей, а главный фасад украшают колонны.
В одноэтажных домах часто мансардный этаж превращают в жилую комнату.
Смотрите в видео: красивые проекты домов, разработанные европейскими архитекторами.
Преимущества польских проектов домов
Разработаны типовые и индивидуальные проекты Z500. В домах эконом-класса нет гаража, поэтому по желанию застройщика архитекторы вносят изменения в первоначальный проект. В одноэтажных зданиях чердачное помещение утепляется и оборудуется под жилое.

К плюсам относят:
- Экономичность, функциональность, простота. Строят из искусственных материалов, не уступающих по качеству натуральным.
- В смету закладывают качественные материалы. Такие здания простоят не одно десятилетие.
- Современный дизайн, стиль. Отсутствуют вычурные детали, но нет той строгости, что присуща, например, немецким коттеджам.
- Утонченная изысканность и лаконичность дизайна.
- Компактные размеры подходят для строительства на небольших земельных участках.
- Одноэтажные дома часто не имеют внутренних несущих стен, можно подгонять планировку под желания владельцев. Существенный плюс в пользу польского коттеджа и ответ на вопрос – Почему застройщики отдают им предпочтения.
- Окна на мансардном этаже позволяют переоборудовать его в жилое.

Вернуться к оглавлениюЭкономичный вариант для среднестатистической семьи.
Примеры проектов одноэтажных домов
Пользуются спросом одноэтажные коттеджи с мансардным этажом и крытой террасой. Пристроенный гараж, утепленная терраса, большая веранда – еще один плюс в пользу строительства по польским проектам.
С мансардой и гаражом
Одна из лучших разработок группы Z500 – одноэтажный мансардный коттедж с гаражом. Он компактен, планировка тщательно продумана. Светлые тона штукатурки и деревянных деталей в отделке фасада делают здание элегантным и современным. Гараж, отделанный в одном ключе с фасадом дома, не выбивается из общего ансамбля.
На первом этаже просторная гостиная и столовая, из которой есть выход на террасу. В столовой предусмотрен камин, возле которого приятно проводить время во время плохой погоды. На большой кухне можно установить всю необходимую бытовую технику. На этаже есть санузел с душем.
На мансарде разместились три спальни, ванная комната. Есть небольшая гардеробная комната. На первом этаже можно оборудовать дополнительную жилую комнату, которую можно использовать как гостевую. Можно устроить кабинет или игровую комнату для детей.
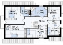
Общая площадь 130 м², жилая – 100 м², площадь гаража – 29 м².
С террасой
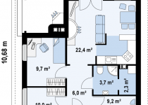
Еще один проект группы Z500 – одноэтажный особняк классического стиля. Основной материал – керамические блоки, фасад оштукатурен в светлых тонах, для декорации использованы деревянные вставки в цвет черепицы. Крыша четырехскатная.
Большой холл без внутренних перегородок, разбит при помощи декора на зоны – столовая, гостиная и кухня. Благодаря такому решению дневная зона светлая, солнечная. Здесь же оборудован небольшой санузел с душем.
Зоны отдыха представлены тремя небольшими спальнями. Для повышения комфорта установлен дополнительный санузел и ванная комната.
На крытой террасе можно отдохнуть в любое время года. Можно использовать как гостиную, если в доме ожидаются гости. Выход на террасу есть со стороны сада и из столовой.
С верандой
Традиционное архитектурное решение в проекте дома с верандой – двускатная крыша, каменный фасад, большая открытая веранда. Просторная кухня отделена от холла, из нее есть выход на веранду. Здесь в теплое время года можно устроить чаепитие для семьи или провести время в кругу друзей.
Холл разбит на зоны – гостиная и столовая. В холле без внутренних перегородок можно выделить игровую зону для детей. В центре построен камин. Через открытую веранду, откуда есть выход в сад, в дом проникает солнечный свет.
В коттедже три спальни, две ванные комнаты. Общая площадь дома 100 м². В торцевых стенах нет окон, можно пристроить гараж.
Дома по польским проектам представлены не только компактными коттеджами эконом-класса. Есть большой выбор комфортных домов с площадью более 150 м², есть особняки от 250 м² и усадьбы от 350 м².
Белорусские проекты польских домиков представлены в видео.
20 фото домов в польском стиле
Вернуться к оглавлениюЗаключение
При всех видимых преимуществах строительства по этим проектам, все-таки не обошлось без недостатков. Польша – Европейская страна и на строительном рынке есть стройматериалы, которые не продаются в России.
Покупая проект польского дома, возможно, придется, вносить в него изменения, адаптируя к местным условиям, что потребует внесения изменений в проектную документацию. Поэтому приобретать польские проекты все-таки разумней в зарекомендовавших себя архитектурных бюро.



















































