Угловые кухонные шкафы (навесные и напольные) – это элементы гарнитура нестандартной формы с большим внутренним объёмом. Могут использоваться для установки мойки, хранения посуды.
Это соединительный элемент между двумя рядами шкафов на перпендикулярных стенах.
Используют их преимущественно в маленьких кухнях и помещениях сложной формы с большим количеством углов.
Перед началом работ стоит разобрать популярные размеры и чертежи углового шкафа для кухни, изучить порядок сборки. Так получится сделать мебель своими руками с нуля.
Вернуться к оглавлениюСодержание материала
Особенности конструкции углового шкафа
Угловые элементы кухонного гарнитура позволяют задействовать неиспользуемое пространство, соединяя два перпендикулярных ряда мебели. В связи с этой особенностью они имеют стандартную пяти- или шестигранную форму.
Шестистенный шкаф – это тот же пятистенный, но со срезанным основным внутренним углом.
Такая конструкция позволяет монтировать мебель на углы, по которым проходят водопроводные стояки. Также упрощается монтаж на неровные углы, не соответствующие 90 градусам.

Особенности угловой мебели:
- При создании дополнительных мест хранения экономится место в кухне. Без углового шкафа между рядами останется пустое место, которое будет портить весь вид.
- Доступ в шкаф осуществляется через узкую дверь, расположенную к внутренним плоскостям под углом. Поэтому его сложно использовать для хранения габаритных вещей и посуды на решётке. Зато, если разбить внутренний объём горизонтальными полками, появится много места для хранения банок, мисок и прочей утвари небольшого размера.
- Фасад углового шкафа – это одна дверца со средней шириной 40-50 см. Для стенок можно использовать любой материал, даже не совсем приглядного вида. Главное – облагородить внутреннее пространство.
- Угловые шкафы всегда устанавливаются парой – напольный и навесной. Напольный шкаф из-за его широкой столешницы идеально подходит для размещения мойки любого формата. Внутри достаточно места для канализационных и водопроводных труб. Единственное неудобство – доступ к самой мойке в процессе эксплуатации. Ведь перед лицом будет находиться навесной шкаф.
- Угловые навесные шкафы бывают открытыми. В них можно хранить красивую посуду и декоративные предметы. Такая мебель служит не столько местом хранения, сколько украшением и визуальным переходом гарнитура через угол.
- Иногда в нижний шкаф встраивают посудомоечную машину. Берут самую компактную технику с шириной дверцы не более 50 см. Для установки приходится отодвигать дальше от угла прямоугольные шкафы, от чего столешница углового настенного шкафа становится еще шире.
Отличным решением для углового навесного шкафа станет установка внутри него карусельной полки.
Смотрится это красиво, а значит, дверцы лучше сделать прозрачными. Также упрощается доступ к содержимому.
Сплошной шкаф
Угловой шкаф можно сделать сплошным, то есть объединить навесную и напольную мебель. Сам шкаф будет прямоугольным или пятиугольным с параллельными боковыми стенками.
Такой приём позволяет эффективнее использовать внутреннее пространство, установить большее количество полок, добавить выдвижные шкафчики, сделать удобное место для установки телевизора, микроволновой печи и прочего.

Угол соединения при этом компенсируется боковым примыканием рядных шкафов, установленных на смежных стенах, что делает использование углового пространства ещё более эффективным.
Г-образные угловые шкафы
Их ставят редко, хотя в конструкционном плане сделать их куда проще. Их форма в значительной степени ограничивает использование внутреннего пространства.
Такие шкафы оснащаются двумя дверями, распахиваемыми наружу в противоположные стороны, или, наоборот, навстречу друг другу.
Именно эта особенность не даёт нормально добираться до полок. Проблему решат двустворчатые двери на рояльных петлях. Однако из-за большого веса соединения очень быстро разбалтываются и провисают.

Размеры углового шкафа в зависимости от вида
Совершенно ясно, что стандартизированных размеров для мебели существовать не может, если не говорить про оптимальную высоту напольных шкафов и высоту расположения навесных.
Мебель, продаваемая в магазинах, рассчитана на установку вдоль стены. Для универсализации предлагается модульный подход, когда покупатель может собрать гарнитур из имеющихся в ассортименте изделий.
Угловые шкафы по такому принципу продаются крайне редко. Чаще кухонный гарнитур проектируют и изготавливают на заказ по габаритам и форме помещения.
- Ширина боковой стенки углового шкафа (глубина) всегда будет равна ширине рядовых навесных шкафов. Чаще значение составляет 35-40 см. Для напольного шкафа этот параметр составляет 60 см и более.
- Длина внутренних граней (расстояние от угла до края шкафа) зависит от формы изделия и его конструкционных особенностей. Если у шкафчика скошенная передняя стенка, ширина дверцы должна быть минимум 40 см (этот параметр напрямую зависит от размера задних стенок), иначе шкафом будет неудобно пользоваться.
- Высота напольного шкафа стандартно составляет 85-86 см с учётом высоты ножек. Верхние шкафы могут дотягиваться хоть до потолка, если это удобно и выглядит красиво.

Если угловой шкаф планируется использовать под мойку, то габариты столешницы рассчитываются по её размерам. Должно быть учтено положение водопроводных и канализационных труб. Если через угол проходит вертикальный стояк, столешница должна его аккуратно обходить.
Чертежи угловых шкафов
Основные параметры шкафа необходимо выбирать по месту, ориентируясь на рост основного пользователя, особенности помещения и идеи автора.

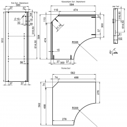
У верхних угловых кухонных шкафов строение закрытое. Задние стенки сплошные, из листа ДВП в 3,2 мм. Это позволяет увеличить пространственную прочность конструкции.
Данный элемент устанавливается последним и монтируется на гвозди. Как и прочие части кухонной мебели, лист ДВП имеет слой ламинации с передней стороны.
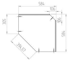
На чертеже показана прямоугольная трапеция. Соотношение сторон симметричное, глубина 330 мм. Наружная дверца наклонена на 45 градусов по отношению к стенам помещения.
Все детали (за исключением задних стенок) делаются из однотипного материала толщиной минимум 20 мм. Дверные петли можно располагать с любой стороны.

Нижний шкаф имеет аналогичное строение. Чтобы обеспечить нормальный доступ внутрь и сделать дверь минимальной ширины, длину задних стенок увеличивают до 90 см.
Для компенсации разницы в длине к навесным шкафам добавляют пару узких шкафчиков соответствующих габаритов.
Задней стенки здесь не будет. Вместо неё под столешницу устанавливается перекладина шириной 80 мм для увеличения прочности. С переднего края добавляется планка шириной 100 мм, служащая ограничителем для дверцы и связывающая боковые стенки друг с другом.
Если в углу проходит стояк, делаются две дополнительные стенки, формирующие нишу под него.

Нижний шкаф оборудуется пятью ножками под каждым из углов.
Подборка чертежей навесных и напольных шкафов:
Вернуться к оглавлениюКак сделать угловой кухонный шкаф своими руками
Угловой шкаф – часть гарнитура. Поэтому изготавливать его имеет смысл, только если вы сами собираете весь комплект мебели.
Материалы для изготовления шкафа
Наиболее распространённые материалы для самодельной мебели:
| Материал | Описание |
Дерево |
Мебель из натурального дерева будет самой дорогой.
Для самостоятельной сборки этот материал подходит лучше остальных. Качественный пиломатериал сейчас сложно купить, поэтому придётся много строгать и фрезеровать. Деревянные шкафы особенно подходят для стиля кантри, в котором для отделки интерьера используются преимущественно натуральные материалы или их имитация. Такая мебель служит долго и выглядит благородно. Для изготовления мебели больше подходят твёрдые сорта дерева, которые менее подвержены воздействию влаги и высоких температур. Подойдут дуб или менее дорогая сосна. |
Ламинированный МДФ/фанера/ДСП |
Свойства всех трёх типов мало чем отличаются. Все они боятся влаги, но хорошо защищены от её попадания слоем ламинации. Защитное покрытие задаёт и облик изделия. Оно может иметь монохромный яркий окрас или имитировать поверхность той же древесины.
Процесс сборки шкафов из таких листов происходит быстрее из-за их размеров. Однако при распиле материала возникают сложности. Срез очень сложно сделать ровным, лишённым сколов, особенно если резать ЛДСП. Для качественного результата необходимо использовать высокооборотистые дисковые циркулярные пилы и резать в несколько проходов с постепенным погружением диска в материал. Перед началом реза рекомендуется проклеить линию прохода диска прозрачным скотчем, который не даст образовываться сколам. Торцы необходимо закрывать специальной лентой, защищающей от влаги и придающей привлекательность. Этот этап тоже непрост. Лента зачастую проклеивается при помощи утюга. Она требует идеально ровного места среза. |
Фанера |
Гарнитур из необработанной фанеры с натуральной фактурой выглядит просто и в то же время со вкусом. Это прочный материал с большим сроком службы.
Он не любит контактов с водой, поэтому рекомендуется поверхности покрывать защитными составами и использовать влагостойкую фанеру, которая дороже обычной. Листовые материалы должны иметь толщину 20 мм, чтобы в них без проблем можно было вкручивать фурнитуру. Вес одного такого листа размером 1525*1525 составляет 30,2 кг. Их сложно транспортировать и заносить в помещение. Есть и более габаритные листы – 2440*1220. В больших магазинах предлагают услуги раскроя. Для этого нужно приготовить чертежи и порезать всё на месте на профессиональном оборудовании. |
Гипсокартон |
Применяется в основном при изготовлении встраиваемой мебели. Для кухонных угловых шкафов его тоже можно использовать, сочетая с другими материалами, из которых будет сделан фасад и прочие декоративные части гарнитура.
Гипсокартон недорогой, шьётся на крепкий металлический или деревянный каркас. Им легко можно обыграть самые сложные углы в комнате. |
Из фурнитуры потребуются:
- ручки для открывания дверей;
- угловые петли с изогнутым основанием;
- доводчики на горизонтальные дверцы;
- уголки мебельные для соединения корпуса шкафа и столешницы;
- евровинты мебельные для быстрого и надёжного соединения деталей корпуса.

Ещё в работе потребуются оцинкованные саморезы длиной 16 мм, шканты и столярный клей.
Столешницы для кухонного гарнитура изготавливают из разных материалов. Чаще это толстый ЛДСП, пропитанный веществами для повышения устойчивости к влажной среде. Также популярен искусственный камень.
Столешницу лучше купить готовую, так как у заводских изделий упрочнённый поверхностный слой, хорошо выдерживающий механические воздействия.
Для желающих изготовить все детали своими руками подойдут бетонные столешницы, технология изготовления которых показана в ролике:
Рабочий инструмент
Набор инструментов зависит от выбранного материала.
Его основу составляют:
- шуруповёрт и электрическая дрель используются для установки крепежа и насверливания отверстий под евровинты и шканты. Можно обойтись и одним шуруповёртом, но намного удобнее иметь два инструмента, чтобы постоянно не менять насадку;
- циркулярная дисковая пила для раскроя досок и листов. Не стоит применять электрический лобзик, если только вместе с направляющей рейкой;
- торцевая пила, если сборка ведётся из досок. Этот инструмент может делать идеально ровный срез под правильным углом;
- рейсмус для калибровки досок (при его отсутствии применяют электрический или ручной рубанок), шлифовальную машинку и ручной фрезер для создания резных фигур на фасаде и скругления углов.
Сборка шкафа
Основная сложность строительства модульной мебели заключается в расчёте габаритов, разметке и раскрое. В этом помогут чертежи, в которых габариты кухни учтены с точностью до миллиметра.
- Сборка начинается с разметки отверстий под крепёж. Каждая деталь фиксируется минимум на 2 евровинта, кроме планок и перемычек. Ответные отверстия должны располагаться точно друг напротив друга, чтобы при сборке не получилось перекосов. Если нет лекал и кондукторов для сверления, нужно внимательно перепроверять замеры по металлической линейке. Это поможет увеличить точность.
- Высверливаются глухие отверстия под дверные петли. Для этого необходимо использовать специальную коронку.
- Основание шкафа ставится на ровную поверхность. Затем к нему прикручиваются боковые стенки.
- Устанавливается опора внутреннего угла. Это могут быть короткие стенки, формирующие угол, или достаточно крепкий брус. Затем крепятся задние перекладины и передняя планка. Основной каркас готов.
- Конструкцию необходимо перевернуть для установки ножек. Это можно было сделать и в самом начале. Но лучше так не поступать, так как есть риск их надломить опору, постоянно вращая шкаф в процессе сборки.
- Монтируются петли и навешиваются дверцы.
- Последней устанавливается столешница. Её можно посадить на шканты и столярный клей. Но это неудобно в плане разметки, и в дальнейшем будет сложно разобрать мебель при необходимости. Лучше использовать стальные или пластиковые уголки, и укрепить столешницу саморезами.
Заключение
В завершение в столешнице вырезается отверстие под мойку. Для этого любая раковина имеет в комплекте лекало, которое позволяет быстро нанести точную разметку.
Главная задача сборщика – симметрично отцентровать. Резать столешницу удобнее всего электрическим лобзиком.















