Особенности «национального» отдыха у большинства русских связаны с помывкой и последующими посиделками, для чего хорошо бы иметь не только баню, но и удобное место типа комнаты отдыха или укромного патио на улице. Как втиснуть такую постройку на небольшой участок, из чего её возвести и чем отделать?
Поразмыслим об этом и многом другом, рассматривая проекты бани с верандой, что предлагаются на сайтах организаций, оказывающих населению услуги по проектированию, поставке материалов и даже сдаче объектов под ключ.

Содержание материала
- 1 Для чего нужен проект, и как его выбрать
- 2 Проекты бань из блоков с верандой
- 3 Проекты бань из клееного бруса с верандой
- 4 Бани из кирпича с кухней или барбекю
- 5 Проекты каркасных бань с верандой
- 6 Каркасный пристрой: пошаговый монтаж своими руками
- 7 Видео о строительстве бани с верандой и обзор готового варианта
- 8 Подведем итоги
Для чего нужен проект, и как его выбрать
Попариться в бане, которая является даже не местом для омовения, а местом для очищения и омоложения организма, любят не только русские. А потому их типов существует много. Есть скандинавские сауны, очень горячие, потому что в них почти нет пара; есть японские бани офуро, в которых вместо парной присутствует просторная купель с горячей водой; есть турецкие хамамы, по-максимуму насыщенные влагой, но при невысокой температуре.
- Русские бани – сырые, так как эффект тепла в них получают не за счёт экстремального прогрева, а благодаря горячему пару. Режим эксплуатации влияет и на подбор строительного материала, на внутреннюю, а также внешнюю облицовку, и на способы обогрева.

- Всё это и должен учитывать проект. А уж кто будет воплощать его в жизнь – наёмная бригада или вы сами, большой разницы нет. Главное — выбрать правильное место под постройку, которая должна находиться с подветренной стороны и желательно не в низине.
- Подходящее место – когда парилку можно поставить недалеко от природного водоёма, чтобы окунуться из парной да в холодную воду. Но так везёт далеко не всем, поэтому рядом с баней многие сооружают искусственный прудик — если не для купания, то для приятного созерцания (читайте на нашем сайте: как сделать красивый пруд на даче).
- В общем, чтобы постройка была комфортной, нужно учесть немало нюансов. Один из них – выбор проекта, учитывающего количество пользующихся парилкой людей, и предусматривающего пассивный отдых. Поэтому зачастую проектируются не просто бани, а дома отдыха с сауной и другими удобствами.


Конечно, новенькая постройка с открытой террасой и комнатой отдыха – идея хорошая (о проектах и строительстве бани с террасой можете узнать по ссылке).

Но не все могут купить даже проект бани 3 3 с верандой, а не то, что выполнить такое строительство. Зато можно благоустроить старую сауну, сделав для неё пристройку (о строительстве пристройки к бане узнайте по ссылке). Поэтому в первой части статьи мы предложим обзор проектов, а во второй, с помощью видео: «Веранда к бане своими руками» и хорошей подборки фото, расскажем об основных этапах такой работы.
Вернуться к оглавлениюПроекты бань из блоков с верандой
Все знают, что самым лучшим материалом для строительства парной является древесина. Но этот материал в ходу далеко не во всех регионах нашей страны. Там, где пиломатериал привозной, стоит он гораздо дороже, и в результате люди обращают своё внимание на другие материалы. Одним из них – пеноблок – укрупнённый ячеистобетонный кирпич, из которого получаются прочные, а главное тёплые стены.

Газобетонные стены труднее герметизировать, а для бани это необходимость. Ведь у неё не просто влажный, а мокрый режим эксплуатации. Лишняя влага губительна для любого материала, а для пористых бетонов – это большой вредитель.
Дом-баня с мансардой
Ниже показано несколько предложений визуализации фасада и планировка бани 6х6 с верандой.
Конкретный пример конструктива и планировки
Общая площадь взятой для примера бани, учитывая верхние помещения, составляет 65,7 м2. Высота полноценного этажа 2,3 м, мансардного – 1,4 стены и 2,2 в верхней точке щипца.
В проекте предусмотрены:
- фундамент: плитный монолит (советуем ознакомиться: как выбрать тип фундамента для бани);
- стены: газоблоки размером 300*600*200 мм;
- наружное утепление под штукатурку (облицовка кирпичом или доской);
- перекрытие: бетонный монолит;
- крыша двухскатная, крытая битумной черепицей.
Вход в домик, который может быть и гостевым, осуществляется через просторное крыльцо-веранду. Самое большое помещение первого этажа – предбанник с лестницей (как выполняется установка лестницы в бане на второй этаж можете узнать из статьи по ссылке), ведущей в мансарду и небольшим санузлом. Из него попадаешь в помывочную и смежную с ней парную. Очень интересно продумана конструкция печи, которая встроена в стену между парной и предбанником. С одной стороны это обычная печь для растопки, а с другой – камин.

Мансарду можно назвать полноценным жилым пространством, так как кроме 15-метровой комнаты отдыха в ней имеется ещё и две спальни. В этом домике нет только кухни, а потому для постоянного проживания он использоваться не может.

Мы привели распространённый проект планировки таких домиков — далее будет представлено ещё множество других примеров.
Вернуться к оглавлениюПроекты бань из клееного бруса с верандой
Клеёный брус — один из надежных материалов для строительства такой постройки. Его главные достоинства – хорошая геометрия, устойчивость к влаге, минимальное линейное расширение. Такая постройка практически не даёт усадку. Но проектировщики предлагают и другие версии – например, из оцилиндрованного бревна или цельного бруса (читайте на нашем сайте: какой материал лучше всего подходит для бани).
Варианты фасадов
Комплектность постройки
Чаще всего та же организация, что выполняет проект, продаёт и комплект материалов для него, и по требованию клиента осуществляет сборку под ключ. Вот какой конструктив может иметь такая баня:
- внешние стены – сруб;
- перегородки каркасные, с двухсторонней обшивкой вагонкой и стекловолоконным утеплителем внутри, закрытым пароизоляционной мембраной;
- пол: лаги из балок 150*50 мм, с внутренним утеплением;
- настил у полов двойной: черновой из обрезной доски 20 мм, и чистовой — на него идёт шпунтованная строганая доска 40 мм;
- потолок (межэтажное перекрытие) утеплен стекловатой (она не так боится увлажнения) толщиной 50 мм, снизу подшивается вагонкой;
- в парной ставится термоустойчивая стеклянная дверь (70*190 см), монтируются лежаки со спинками из осиновой доски толщиной 20 мм;
- утепление стен мансарды в базовую комплектацию не входит – это согласуется с заказчиком за дополнительную плату;
- Окна (с двойным остеклением) и двери устанавливаются деревянные, без фурнитуры;
- Крыша кроется оцинкованной сталью.
Разнообразие планировок
Размеры в плане таких бань могут отличаться, и вот несколько планировок:
Бани из кирпича с кухней или барбекю
Коль уж строить баню или гостевой дом из кирпича — то делать это так, чтобы в них можно было не только помыться и отдохнуть, но и приготовить еду. Поэтому подобные строения часто проектируют в комплексе с летней кухней или расположенной на террасе зоной барбекю (проекты бани с террасой и барбекю представлены на нашем сайте по ссылке).


Печку, кстати, можно тоже построить из кирпича, только обязательно керамического. Для возведения стен бани может использоваться и силикатный, так как кладка изнутри все равно тщательно изолируется.

В большинстве проектов бань со всевозможными пристройками предусматривается фундамент в виде плитного монолита.
- Во-первых, он универсален и может заливаться на разных грунтах (за исключением слабых неустойчивых, когда требуются сваи).
- Во-вторых, плита очень удобна, не придётся заливать ни полы в самой бане, ни на уличной зоне, где располагается терраса. Не придётся так же просчитывать фундамент под барбекю или стационарный мангал.
- В зависимости от проекта, стены могут возводиться либо из пустотелого кирпича по технологии колодцевой кладки, либо из бетонных блоков с внешней облицовкой кирпичом (с отделкой цоколя камнем).
- Утепление фасада производится минеральной ватой, которая единственная из всех утеплителей обладает высокой степенью паропроницаемости.


- В некоторых проектах в качестве наружной отделки предусматривается штукатурка по утеплителю (тёплые штукатурные системы). В этом случае, важно чтобы и штукатурка, и фасадная краса обладали столь же высокой паропроницаемостью, как и минвата.
- Выбор материала для перегородок отдаётся на усмотрение заказчика, но лучше, если это будет красный кирпич. Конструкции изолируются от пара с двух сторон.
Крыша у кирпичной бани обычно двухскатная или вальмовая, но может быть и односкатная, с покрытием из битумной или металлической черепицы (о строительстве крыши для бани узнайте из нашей статьи).
Планировка
Планировка, как и в любом другом случае, зависит от размеров строения в плане и количества этажей. Рассмотрим вариант гостевого дома с мансардой размером 8*9,37 м:
- Внизу предусмотрена просторная открытая веранда к бане, которую при желании можно и застеклить, либо установить барбекю.
- Комната отдыха в этой бане не уступает по площади полноценной гостиной, в которой есть и камин (соответственно, подойдет для зимнего использования), и небольшой бар, и телевизионная зона.
- Здесь же находится просторный санузел, хоть и без ванны, и, собственно, купальные помещения (моечная и парилка).

В мансарде располагается одна большая комната с площадью 28,5 м2, которую можно разделить на две спальни. На верхнем этаже есть встроенный балкон, что позволяет ночевавшему в комнате человеку выйти поутру вдохнуть свежий воздух. Всё удобно и ориентировано на комфортный отдых.

Проекты бань с большой верандой могут предусматривать и одноэтажную застройку. А почему бы и нет, если участок позволяет? Да и потом, баня вполне может обойтись и без спален, а небольшой комнаты отдыха хозяевам вполне может быть достаточно.
На примере снизу в бане нет туалетной комнаты. Если рядом с ней находится жилой дом, то ничего страшного в этом нет — в крайнем случае, «удобства» придётся предусмотреть на улице. Но когда туалет есть — а его ведь можно совместить с моечным помещением, это гораздо комфортнее.

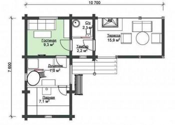
Именно такая планировка бани 6х8 с верандой и туалетом и представлена ниже.

Конечно, подобные планировки можно предусмотреть в любом другом доме, а не только кирпичном.
Проекты каркасных бань с верандой
Любая постройка, именуемая каркасной, состоит из несущего «скелета», которым и является каркас (вертикальные стойки и горизонтальная обвязка), и его заполнения. Если пространство между стойками заполняется готовыми модулями – чаще всего это трёхслойные панели СИП, домик будет называться каркасно-щитовым. Если многослойная структура формируется на месте, то конструкция называется каркасно-обшивной.


Проект двухэтажной бани с верандой, как и вариант в одном уровне без мансарды, может предусматривать и ту, и другую технологию.

Их достоинством является скорость возведения и доступная цена, а размер могут отличаться. Да и конфигурация не обязательно прямоугольная — есть варианты и для угловой установки.

Такой макет можно воплощать самостоятельно, а также заказать к нему комплект материалов со сборкой и сдачей под ключ.


Комплектуются каркасные бани в обшивном варианте примерно так.
Комплектация
Каркасные постройки очень удобно ставить на точечные опоры, поэтому фундаменты для них чаще предусматривают свайные или столбчатые. Сваи монтируют, когда на участке грунтовые воды близки к поверхности, в остальных случаях достаточно установки блочных или кирпичных столбов сечением 400*400 мм, с выходом над поверхностью грунта на 40 см.
- На нижнюю обвязку обычно берут нестроганый брус – если использовать клееный, бюджет строительства резко возрастает. В зависимости от размеров постройки сечение бруса может быть 100*150; 150*200 либо 150*150 мм.

- Для верхней обвязки применяется доска толщиной 40 мм, ширина так же от 100 до 200 мм. Из этого же пиломатериала формируются и каркасы перегородок.
- Лаги пола 1 этажа монтируются из бруса 100*150 мм (с шагом 80 см). На мансардном перекрытии, если таковое предусматривается проектом, достаточно сечения 50*150 или даже на 100 мм, но укладывают их уже с шагом 60 см.
- Для отделки всех ограждающих конструкций используется доска-вагонка из хвойных пород (чаще сосны) сорта «В» камерной сушки, толщина до 16 мм. Только в парной применяется не сосна, а осина (липа).

- В качестве утеплителя для стен и перекрытий используется базальтовая плита, так как она является негорючим материалом (как выполняется утепление бани изнутри читайте в статье).
- На полы идёт тоже сосновая, термообработанная шпунтованная доска толщиной до 36 мм.
- Если того требует проект, в комплектации бани будет и деревянная, одно- или двухмаршевая лестница.
- Оконные рамы деревянные, с двойным стеклопакетом, входная дверь из металла, внутренние двери деревянные. В парной дверь банная, из осины, в остальных помещениях – обычные межкомнатные филёнчатые полотна.

Все остальные расходные материалы, как то: стропила, рейки для обрешётки, пароизоляционные плёнки, осиновые полки для парной, кровельное покрытие из ондулина, входные ступени, вентрешётки и крепёж, присутствуют в комплекте.

Иногда в качестве бонуса устанавливается душевой поддон, а вот установка печи в стоимость не входит, её заказчику приходится покупать самостоятельно и доплачивать за установку.
Вернуться к оглавлениюКаркасный пристрой: пошаговый монтаж своими руками
Какой бы конструктив ни имели стены бани, будь они не только из дерева, но и из блоков или кирпича, веранда чаще всего имеет каркасную структуру, её легко присоединить к уже существующему строению. Веранда к бане, своими руками пристроенная, не только будет удобным местом для релаксации, но и сделает постройку привлекательней.

Краткая инструкция в картинках подскажет вам, как это делается:

Далее уже дело техники: монтируются стропила крыши и кровельный материал, обшивается пол, устанавливаются поперечины и оконные рамы (если веранда будет закрытой) или декоративные ограждения.

Такую веранду или террасу можно пристроить к кирпичной и к блочной бане.


Видео о строительстве бани с верандой и обзор готового варианта
Подведем итоги
Сделать такую баню может каждый хозяин, мало-мальски умеющий обращаться со столярным инструментом. А если ещё проявить немного фантазии, сделать красивые шпалеры, да ещё высадить вдоль них плетущиеся растения, ваш отдых после бани будет каждый раз запоминающийся.



































