Дома с приусадебными участками оборудуют пристройками открытого и закрытого типа. Террасы разного типа — переходный, одновременно объединяющий элемент между домом и прилегающим ландшафтом участка. Проекты с верандой, пристроенной к дому, — популярный тип здания, олицетворяющий семейный отдых на лоне природы в комфортной обстановке.

Содержание материала
Чем отличается веранда от террасы — что выбрать
Открытая площадка, пристроенная к дому, многофункциональный объект. С одной стороной — это органичное продолжение здания, с другой — дополненная полезная площадь. Естественным образом вливается в композицию ландшафтного дизайна. Различают два основных типа пристроек: террасу и веранду. Но грань между ними условна.

Терраса — открытая площадка с крышей, пристроенная к дому. Она может иметь огораживающий контур. Панорамный обзор — одно из достоинств открытых пристроек.

Веранда — это та же терраса, только застекленная. Тёплая пристройка с отоплением продлевает сезонный срок эксплуатации. Пристройку без обогрева используют в тёплый период года. В квартирах такую функцию выполняет лоджия или балкон.
В холодное время года на ней хранят часть собранного урожая, консервацию. Комбинированный вариант, удобный с функциональной точки зрения — терраса с зимним остеклением.
Есть блочные системы остекления, которые просто установить и демонтировать. Так, «лёгким движением рук» терраса превращается в веранду.
Выбор модели пристройки зависит от пожеланий хозяев, соответствует основному целевому назначению. Определяющий фактор — стилистика фасада здания, элементы ландшафтной композиции.
Например, коттедж в стиле минимализма с панорамным остеклением и бассейном, притягивает открытую большую террасу. К дачному брусовому домику, строению из дерева по стилистике подойдет веранда, полузакрытая терраса.
Виды веранд
Интегрированные пристройки проектируют вместе с домом, они возводятся на общем ленточном фундаменте.

Устанавливают на специально подготовленное основание. Конструкции монтируют на ленточный, столбчатый, винтовой фундамент (на зыбких, мокрых почвах). Отличаются по форме. Пристройка может иметь любую конфигурацию, в зависимости от дизайнерской концепции. Самая распространённая форма — прямоугольная, с примыканием к одной, двум стенам.
Отличаются материалом, из которого делают пристройки:
- сварная металлическая;
- сборная из усиленного алюминиевого профиля;
- из деревянного бруса, досок.
Габариты подбираются индивидуально. Отталкиваются от размеров дома, они должны быть пропорциональны, соизмеримы с основным зданием.
Отличаются видом примыкания к дому:
- на фасадной части дома;
- угловая веранда;
- боковое примыкание;
- к заднему фасаду, с выходом на участок.
Когда пристройка выходит в сад, это удобно для работы и отдыха на участке
Последний вариант — наиболее удачный вид расположения. Открывается хороший вид на участок. Примыкание к заднему фасаду обеспечивает более интимную обстановку для отдыха, изолирует от посторонних глаз.
Вернуться к оглавлениюПроекты двухэтажных домов с верандой: варианты обустройства
В проектах двухэтажных домов обычно веранду делают под балконом второго этажа.
Рационально такое расположение в том, что основание балкона служит одновременно кровлей веранды. Отдельно следует отметить проекты бани с мансардой и открытой пристройкой. Это естественное продолжение комплекса для отдыха.
Веранда — функциональная часть здания и элемент архитектурного декора, как и балкон.
Она должна сочетаться с общей стилистикой дома, выступать в роли акцента. Пристройке стараются придать интересную форму, используют порою нестандартные приёмы для оформления.
К загородным домам в стиле минимализм с панорамными окнами подойдут открытые террасы, веранды с чёткими прямыми линиями планировки. В зависимости от основных текстур фасада используют дерево, стальной алюминиевый профиль.
Отделка из камня на фасадной части в качестве компаньона притягивает деревянный брус строгих геометрических форм, террасную доску или плитку под камень, в качестве напольного покрытия. Если для отдельных элементов дома используют стальные конструкции, композитные, алюминиевые материалы, то логично построить из них веранду.
Каркасные дома чаще обустраивают открытыми, закрытыми террасами из бруса. Используют пристройки из ПВХ профиля с алюминиевыми стойками.
Конструкция из бруса, брёвен пристраивается к деревянным пристройкам. Часто их стилизируют в национальных традициях. Проявляется это в форме балясин (ограждения террасы), опорных столбов, оформлении крыльца.
Каркас крыши изготавливают из основного несущего материала: дерева, алюминиевого усиленного профиля, сварных конструкций. Отдельно стоит остановиться на крышах из поликарбоната. Он лёгкий, монтируется к любому типу каркасу. Пропускает свет, в то же время создаёт тень над террасой. Поликарбонатными кровлями в основном оборудуют открытые пристройки.
Типовые проекты одноэтажных домов с верандой
Востребованы проекты небольших домов, рассчитанных на среднестатистическую семью с одним, двумя детьми. Большая часть типовых проектов включает мансардный этаж и веранду.
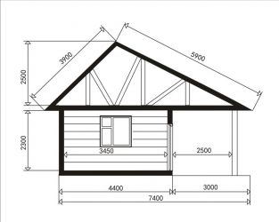
Дом с мансардой 6х8 с верандой
Такой частный дом функционален, так как включает все элементы благоустройства для семьи, можно выделить отдельную площадь для всех членов семьи.

Схема таких домов примерно следующая.
1 этаж:
- веранда;
- прихожая;
- гостиная;
- кухня;
- санузел, ванная.
Мансардный этаж:
- балкон над террасой;
- 2 спальни;
- возможен второй санузел.
Метраж отдельных комнат варьируется. Мансарда значительно расширяет жилую площадь дома, его строительство незначительно дороже одного этажа.

Площадку пристраивают чаще со стороны входа или тыльной стороны, с выходом из гостиной, кухни.
Дом 6х6 с верандой
Такой проект подходит для небольшого дачного участка. Это может быть небольшой одноэтажный домик с кухней–гостиной, спальней и санузлом, с пристроенной верандой.

Проектировщики отмечают, что дачники часто выбирают дома из бруса или оцилиндрованного бревна.

Рационально устроить под крышей мансарду для спальни, за счёт этого расширить метраж нижних комнат.
Проекты деревянных домов 8 на 12 с верандой
Строение такого типа позволяет поместить основные функциональные комнаты на одном этаже, включая: прихожую, гостиную, кухню, санузлы, 2–3 спальни.

Надстройка мансардного этажа значительно расширяет жилую площадь, получается просторное домостроение с возможностью обустройства гостевой комнаты, дополнительной спальни, спортзала, второго санузла.
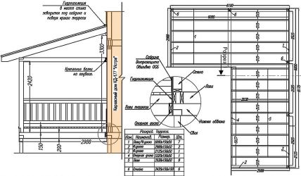
Вернуться к оглавлениюГотовые чертежи веранд, пристроенных к дому
Вернуться к оглавлениюПристройка веранды к деревянному дому своими руками
Прежде чем приступить к постройке, помните, что её возведение необходимо согласовать и утвердить в муниципальных органах. Начинают с проекта пристройки.
Лучше обратиться к архитекторам, которые просчитают, спланируют пристройку.
Этапы работ:
- Детально замеряют фасадную часть, к которой будет примыкать площадка. Выбрать материал. К дому из бруса, бревен обычно монтируют деревянную пристройку, так как она отвечает стилистической концепции.
- Закладывают фундамент. В зависимости от типа пристройки, характеристик почв выбирают вид основания дома.
Процесс монтажа фундамента веранды Под утепленную, отапливаемую пристройку, с устоявшимися грунтами, рекомендуют делать ленточный, бетонированный столбчатый фундамент. Для подтапливаемых, мокрых почв лучше использовать винтовую систему. Глубину залегания делают такой, как и для фундамента дома (до 30 см ниже уровня промерзания земли). Ленточное основание скрепляют с основным зданием металлическими закладными. Оставляют деформационный шов до 5 см.
- Делают нижнюю обвязку из бруса.
- Устанавливают боковые стойки с шагом 1,5 метра.
- Скрепляют их между собой верхней обвязкой из бруса такого же размера, как и нижний ярус.
- Монтируют стропильную часть. Устанавливают перпендикулярно боковым стойкам, возможно, с дополнительным усилением стропил под тяжелую крышу.
- Монтаж крыши. В зависимости от типа кровли делают обрешетку (под профлист, металлочерепицу, ондулин). Под мягкую кровлю зашивают всплошную фанерой, OSB плитой.
- Устанавливают боковые ограждения между стойками с перпендикулярными поперечными перемычками. Для застеклённой веранды они служат подоконниками.
Отапливаемую веранду дополнительно утепляют по классической схеме, как стены и крышу дома. Смотрите видео о пошаговом строительстве веранды к дому.
Заключение
Дома с верандой — востребованный тип проектов жилых строений. В теплое время года в пристройке больше всего времени проводит семья. Отдыхают в её тени, скрываясь от жары, устраивают семейные обеды.

Веранда служит одновременно и архитектурным декором здания, поэтому для её оформления используют художественные формы: резные балясины ограждения, козырька свеса крыши.















































